Wir verkaufen drei individuelle Häuser in Roggwil

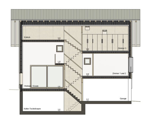
Zwei bestehende Hausteile werden saniert und vereinen zusammen Geschichte, Architektur und Holzbau. Erweitert wird die Anlage mit einem kompakten Neubau, der über Halbgeschosse zentral erschlossen wird. 
Ein wesentlicher Bestandteil aller Gebäude ist der Anspruch an ein gesundes und angenehmes Raumklima und das Zusammenspiel von Rückzugs- und Gemeinschaftsräumen in natürlichen und nachhaltigen Materialien.

 

 

Die 'Piazza' zwischen den Häuser bildet das verbindende Element des zukünftigen Zusammenlebens. Die privaten Aussenräume der einzelnen Gebäude sind auf der 'Piazza' abgewandten Seite, um für alle drei Parteien Rückzugsorte im Freien zu gewährleisten.

Auszüge aus der Verkausfdokumentation

Material- und Farbkonzept